loja da terra do bacalhau  

Projeto de arquitetura - instalação de estabelecimento comercial
PROJETO APROVADO
2022
Mercado do Bolhão > Porto

Loja inserida no novo e recentemente requalificado Mercado do Bolhão, no Porto: loja 43, virada para a rua nascente e pedonal - Rua de Alexandre Braga.
Esta loja visava albergar o novo espaço da marca "Terra do Bacalhau", já com outros espaços em Lisboa. O objetivo deste espaço era a comercialização de produtos de bacalhau desenvolvido em várias técnicas de manipulação do produto e em vários formatos (seco, demolhado, congelado, ultracongelado, etc.), não sendo o foco a criação de espaço de refeições, havendo apenas lugar a provas de produto pontuais.

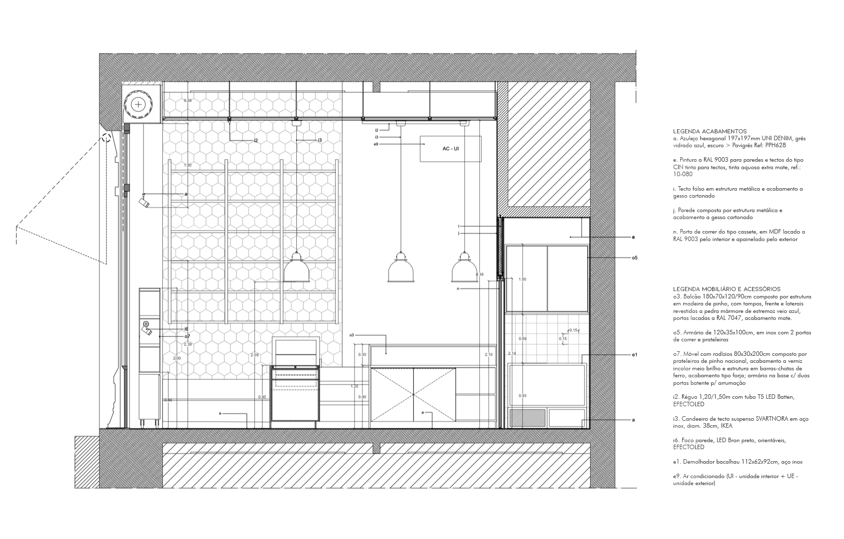
O desafio foi conseguir encaixar num espaço tão exíguo os diversos tipos de maquinaria e equipamentos de grandes dimensões necessário a este negócio, assim como a área de serviço obrigatória e wc de apoio. Para isso, tentámos tirar o melhor proveito possível do pé direito do espaço, sem que houvesse necessidade de recorrer a um piso em mezanino.

Para uma boa exposição dos vários tipos de produto, desenhamos vitrines frias para exposição e maximizamos a área de exposição de produto nas paredes.
A escolha dos materiais reflete a interpretação do briefing recebido - uma linguagem náutica - o cuidado em não desfasar demasiado dos espaços já desenvolvidos pela marca e as condicionantes impostas pelo "manual do mercado" onde foram definidos um conjunto de normas e especificações técnica a cumprir, em virtude de uma linguagem própria e unificada do novo mercado.

Mobirise Website Builder

planta

corte longitudinal esquerda
corte longitudinal direita
Mobirise Website Builder

corte transversal - execução