casas barranha  

Projeto de arquitetura - reabilitação e ampliação de duas moradias
EM LICENCIAMENTO
2022
Senhora da Hora > Matosinhos

Duas casas geminadas, duas irmãs, a mesma família. Implantadas em dois lotes de boas dimensões e com diversas árvores de fruto e um poço, estão inseridas num bairro de moradias unifamiliares de um e dois pisos e bastantes serviços. 
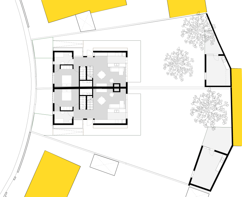
Uma reabilitação que procura não romper com o existente, mas recupera-lo e reforçar a relação com o local. Cada uma das casas, de tipologia T2 e planta simetricamente idêntica, mostra uma construção já bastante degradada, com divisões pequenas e sem circulações. O acesso é direto para a sala e esta serve como distribuidor para as restantes três divisões - dois quartos e cozinha. O wc funciona já no exterior, no logradouro.

O objetivo é manter as duas casas idênticas, criar áreas comuns mais generosas e com uma diferente relação com exterior - maior conexão com o jardim, maior privacidade para a rua, assim como atribuir melhores condições funcionais e de salubridade, trazendo o wc para o interior da habitação.
Como estamos a trabalhar num bairro consolidado, há que manter os alinhamentos com as construções adjacentes. Assim, optamos por prolongar a implantação, ao nível do r/chão, apenas até ao limite dos anexos existentes, de maneira a cumprir com uma das premissas deste projeto - controlar os custos da construção. Neste sentido, elevar um piso acima do existente em toda a sua extensão, seria uma solução pouco apelativa; desenvolvemos um meio piso em mezanino que alberga com privacidade o segundo quarto e um wc, debruçado sobre uma sala e cozinha com um pé-direito generoso viradas agora para o jardim através de um pano envidraçado que ocupa quase a totalidade da fachada virada a nascente.

Outra das opções determinantes para este projeto foi a alteração da posição da entrada para a lateral das habitações, de maneira a conseguirmos uma melhor distribuição programática e um melhor aproveitamento de espaço, tornando-se este o ponto principal do projeto, onde tudo conflui. 
De linguagem pura, inspiração na arquitetura modernista portuguesa e nas paisagens alentejanas com um cunho de contemporaneidade. A simplicidade nas formas, a manutenção dos materiais tradicionais e puristas como a madeira e a telha de barro vermelha, dá um cunho de autenticidade ao conjunto.

planta piso térreo
planta piso 1
Mobirise Website Builder

alçado lateral

alçado de rua
alçado tardoz
Mobirise Website Builder

corte longitudinal

antes/existente

o projeto